Дизайн интерьера
Современные авторские проекты
Персональная история, воплощенная в пространстве
Авторский дизайн в современной интерпретации – это архитектура приватного мира. Интеллектуальные решения, эстетика, эргономика и глубокое понимание заказчика. Выстраивание концепции, где продуманное зонирование, сложный световой сценарий и работа с объемами становятся ключевыми инструментами.
Сочетание натуральных материалов, предметов искусства и инновационных технологий делает интерьер не только привлекательным, но и функционально безупречным
Целостная живая среда, в которой хочется оставаться.







Рабочая документация
Планировочные решения
Фундаментальный и первостепенный этап создания дизайн-проекта. Комплексный анализ исходных архитектурных условий с последующей разработкой оптимальной пространственной организации.
Развернутые планы стен, полов и потолков
- Точные размеры и привязка всех элементов;
- Расположение и габариты встроенной мебели;
- Разметка отделочных материалов;
- Расположение и высоты установки всех электроустановочных изделий;
- Схемы освещения;
- Типы и границы отделочных материалов;
- Инженерные системы.
Детализированные чертежи (узловые сечения)
- Конструктивные пояснения (последовательность слоев, материалов, их параметры и способы монтажа);
- Решение сложных примыканий (детализация сопряжений разных материалов и плоскости);
- Обеспечение технологичности (разъяснение специфики монтажа);
- Предупреждение ошибок (исключение разночтения и избежание конструктивных и эстетических дефектов)
Основные инженерные разделы:
1. ЭМ (Электромонтажные работы) / ЭО (Электрооборудование):
- Силовая часть: план расстановки электрооборудования, схема распределительных щитов, расчет нагрузок, трассировка кабельных линий;
- Освещение: схема управления освещением (привязка выключателей к светильникам), план размещения светильников (дублируется на плане потолков), спецификация оборудования.
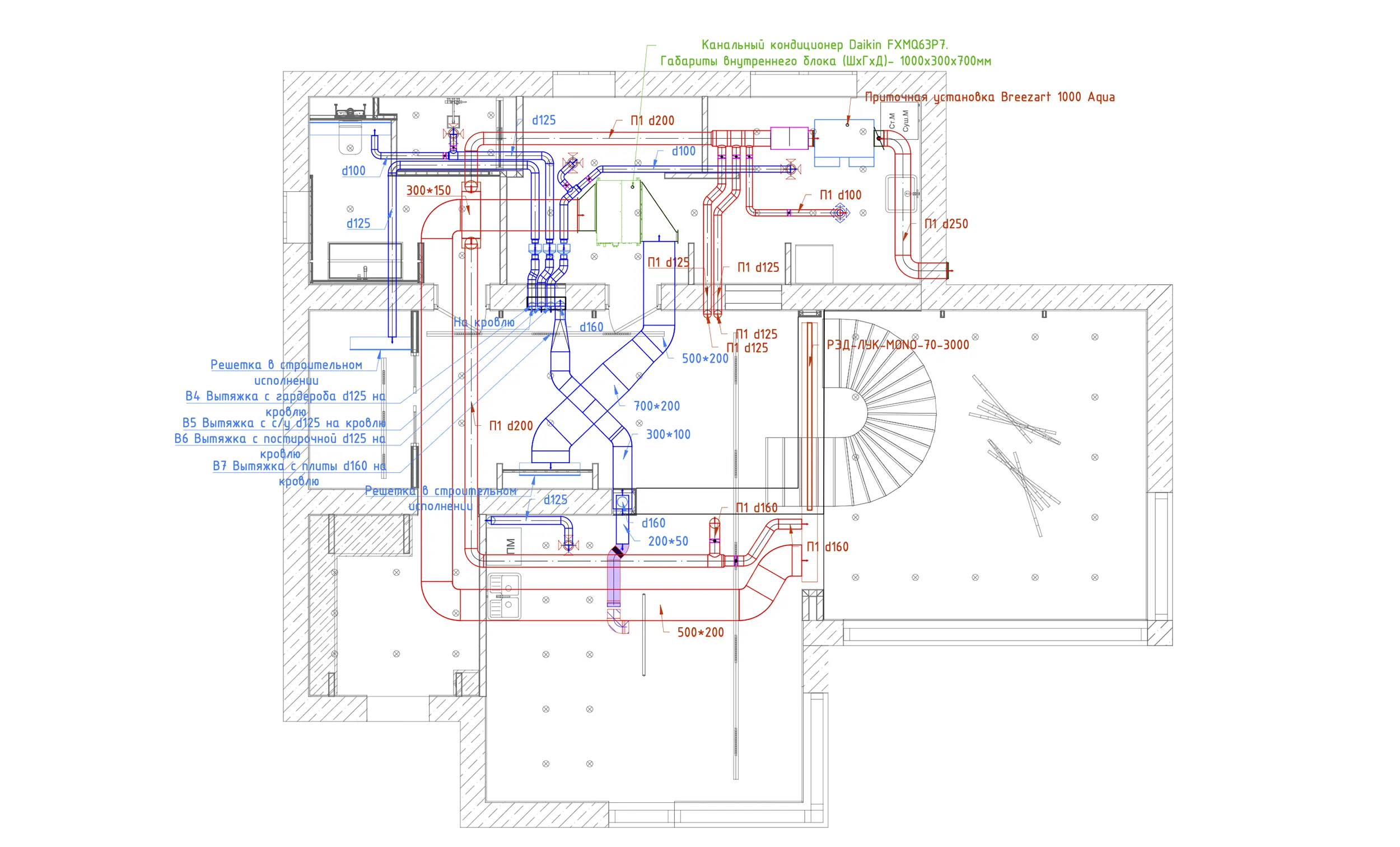
2. ОВиК (Отопление, Вентиляция и Кондиционирование):
- План размещения оборудования (внутренние/внешние блоки, канальные установки);
- Трассировка воздуховодов и хладотрасс;
- План размещения решеток, диффузоров, терморегуляторов;
- Схемы обвязки и управления.
3. ВК (Водоснабжение и Канализация):
- План расстановки сантехнических приборов;
- Схемы систем ХВС (холодного водоснабжения), ГВС (горячего водоснабжения) и К (канализации) с указанием диаметров труб, уклонов, точек подключения;
- План скрытого монтажа для инсталляций, подвесных унитазов, душевых трапов.







Слаботочные системы
"Умный дом": схема расположения контроллеров, датчиков, панелей управления для комплексных систем автоматизации.
ИТ-инфраструктура: план прокладки LAN-кабелей, размещения розеток, Wi-Fi-оборудования
Телевидение и аудио: разводка кабелей ТВ, спутникового TV, multiroom-аудиосистем;
Системы безопасности: размещение датчиков, домофонов, видеонаблюдения (при необходимости)
Черновые подготовительные работы и прокладка инженерно-технологических систем
Комплекс мероприятий по формированию плоскостей стен, полов и потолков, а также все дополнительные скрытые операции по созданию базовой геометрии помещений и интеграции систем жизнеобеспечения.
Искусство деталей
Комплектация и декор
Гармоничный интерьер рождается не только из грамотной планировки, но и из безупречного наполнения: подбора чистовых материалов, мебели, сантехники, систем освещения и других инженерных решений
Декор дополняет архитектуру и создает целостность стиля, расставляя смысловые акценты и вдыхая душу в интерьер вашего дома.




































