АВТОРСКИЙ ЭКОПОЛИС
У БОЛЬШОЙ ВОДЫ

Современный коттеджный поселок бизнес-класса с уникальным кварталом уровня "бизнес-плюс" в едином архитектурном стиле

Концепция поселка разработана с учетом всех современных тенденций и непревзойденного дизайна

Логотип          
       
Фото 1
Фото 2
Фото 3
Фото 4
Фото 5

Эксклюзивная архитектура
в шаге от столицы

Новый уровень свободы и комфорта
Редкий баланс между тишиной и деловой жизнью города

Карта расположения
0 км
от МКАД
0 мин
до Садового кольца
0 мин
до аэропорта Шереметьево
0 мин
до Северного речного вокзала

Генеральный план посёлка

Ключевые параметры и обозначения

Генеральный план — карта
Общая площадь посёлка: 17 га
  • площадь жилой застройки: 10 га
  • территория для спорта и отдыха: 7 га
Всего участков — 82
  • участков без подряда — 67
  • участков с подрядом “Бизнес +” — 15

Въездная группа

Центр притяжения

Административный блок

Истинное сердце инфраструктуры поселка

Круглосуточный пост охраны. Зона ресепшн управляющей компании, обеспечивающей безупречную работу всех инженерных систем поселка.

Описание изображения

Архитектурная концепция квартала
"Бизнес-плюс"

Исключительная жилая среда из 15 домовладений различной площади в едином архитектурном стиле. Современная концепция, утонченный дизайн,
безупречная реализация.


Участок № 62
Архитектура, опережающая время

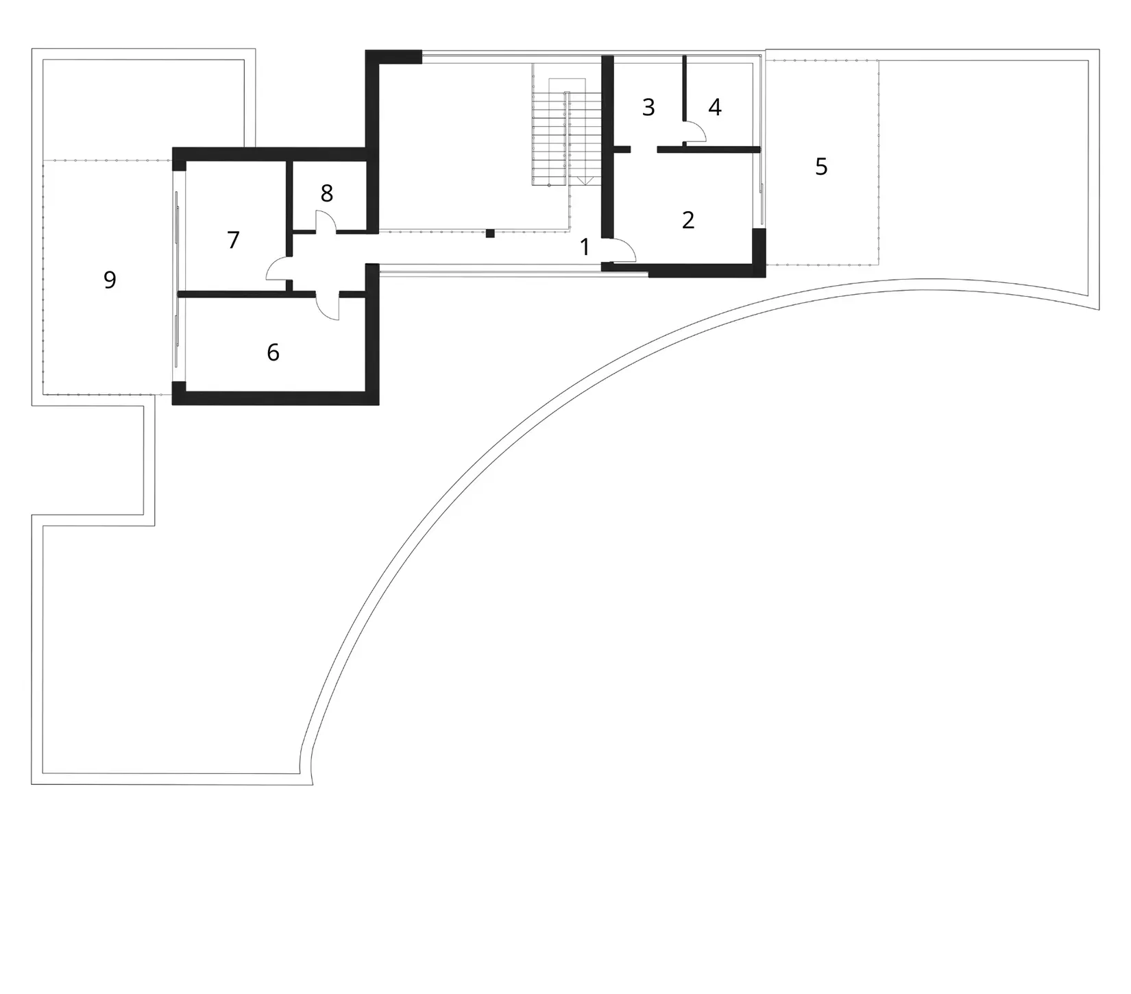
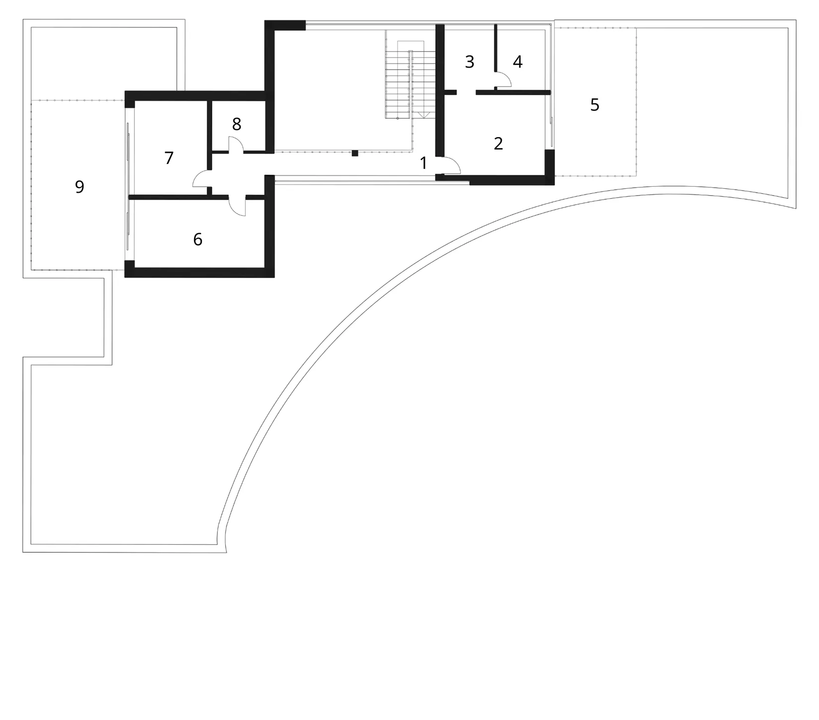
Планировочное решение

Первый этаж
План первого этажа
Подробнее
  1. 1Терраса52 м²
  2. 2Гостиная72 м²
  3. 3Кухня25,3 м²
  4. 4Кладовая6 м²
  5. 5Прихожая24,4 м²
  6. 6С/У2,9 м²
  7. 7Коридор28,6 м²
  8. 8Спальня19,2 м²
  9. 9С/У6,6 м²
  10. 10Спальня19,2 м²
  11. 11С/У6,5 м²
  12. 12Гараж55,5 м²
  13. 13Постирочная12,5 м²
  14. 14Кладовая8,1 м²
  15. 15Котельная8,4 м²
Второй этаж
План второго этажа
Подробнее
  1. 1Коридор16,4 м²
  2. 2Спальня16,5 м²
  3. 3Спальня16,5 м²
  4. 4Мастер-спальня20 м²
  5. 5Гардеробная7,6 м²
  6. 6С/У9,3 м²
  7. 7С/У7 м²
  8. 8Балкон32,3 м²
Фасад дома

Минимализм. Простор. Эстетика.

Безупречное пространство

Супервайзинг и мониторинг проекта. Контроль качества в реальном времени. Взаимодействие с заказчиком, проектным отделом, техническим надзором и авторским контролем проекта
Самый престижный сектор в поселке
бизнес-класса у Пироговского водохранилища

Участок № 60

Архитектура для современной жизни

Планировочное решение

Первый этаж
План первого этажа — Участок № 60
Подробнее
  1. 1Терраса67 м²
  2. 2Прихожая23,5 м²
  3. 3Гостиная48 м²
  4. 4Кухня-столовая44 м²
  5. 5Терраса53 м²
  6. 6Кладовая6,5 м²
  7. 7Гараж38,3 м²
  8. 8Коридор13,1 м²
  9. 9С/У4,8 м²
  10. 10Cпальня17,5 м²
  11. 11Постирочная11,5 м²
  12. 12Гардеробная11,5 м²
  13. 13Котельная17,4 м²
Приватная среда в поселке бизнес-класса
Второй этаж
План второго этажа — Участок № 60
Подробнее
  1. 1Коридор17,8 м²
  2. 2Мастер-спальня20,1 м²
  3. 3Гардеробная7,5 м²
  4. 4С/У7,2 м²
  5. 5Балкон30 м²
  6. 6Спальня22 м²
  7. 7Спальня17 м²
  8. 8С/У6,7 м²
  9. 9Балкон39 м²
Фасад дома — Участок № 60

Архитектура нового поколения

Технологичность и комфорт бизнес-класса

Для нас важно создание эргономичных и продуманных планировочных решений; долговечность, качество и экологичность отделочных и строительных материалов; точность расчетов конструктива здания и высокая квалификация при проектировании инженерных систем
Стиль современного искусства:
  • минималистичный дизайн
  • чистые линии
  • панорамное остекление

Рекреационная зона посёлка и благоустройство территории

Продуманная территория непрерывного пространства
для комфортной загородной жизни

Большой теннис

Большой теннис

Открытый корт с профессиональным покрытием – это естественное продолжение философии поселка класса бизнес. Превращение семейных турниров в добрую традицию. Точка притяжения для тех, кто ценит динамику

Padel

Padel

Пространство, где современный тренд перерастает в традицию. Наличие собственного корта создает уникальное преимущество, формируя исключительную среду для жизни.

Зимние развлечения

Зимние развлечения

Катание на тюбингах по специально оборудованной трассе – это не просто досуг, а продуманная активность. Безопасный ухоженный спуск становится центром притяжения для всей семьи. Здесь радуются дети и их родители. Ощутите прилив беззаботности, не покидая пределов охраняемой и приватной территории поселка.

Зимние развлечения

Пруд и парковая зона

Центральный элемент ландшафтной композиции поселка. Для всех возрастов и сценариев отдыха: велопешеходные маршруты, беседка с видом на воду и открытые поляны с шезлонгами. Вечернее освещение создает атмосферную среду, превращая парк в место притяжения для всех резидентов поселка.

Хранение водной техники

Хранение водной техники

Высвобождение собственной территории от габаритных прицепов и дополнительных построек. Сохранение эстетики ландшафта и всего домовладения.

Ограниченное предложение эксклюзивных резиденций

Всего 15 домовладений в приватном квартале поселка бизнес-класса

Уникальная локация вблизи большой воды

Всего в 10 км от МКАД с удобным заездом по трем шоссе

Окружение посёлка

Жизнь внутри заповедной природы с развитой инфраструктурой
Престижное и экологически чистое направление Подмосковья

Генеральный план — карта

Спокойствие и природа

Яхт-клуб "Ореховая бухта"

Клуб для любителей отдыха на воде, яхтсменов и путешественников. Место, где царит живая атмосфера увлеченных парусом людей

Ресторан

Выход на веранду у самой воды – идеальная атмосфера для семейного ужина или празднования мероприятия

Большая вода

Жемчужина системы канала имени Москвы. Престижная акватория отражающая сотни белых яхтенных парусов

Водные развлечения

         

Пироговское водохранилище - центр водного активного отдыха Московского региона.

Акватория площадью более 20 квадратных километров дает полную свободу для скоростных развлечений на любой вкус.

Идеальные условия как для тех, кто только пробует держать равновесие, так и для опытных райдеров, готовых к сложным трюкам на чистой воде вдали от судового хода.

Сапборды
Водные лыжи
Jet
Серфинг

"Наш лес"

Современный территориальный комплекс для
активного отдыха и занятий спортом на территории заповедного леса

Находится в шаговой (500 м) доступности от поселка
"Пироговские сады" и расположен на самом берегу Пироговского
(Клязьминского) водохранилища



Комплекс "Наш лес" согласно плану развития территории предусматривает создание причалов для стоянки катеров и яхт, оборудованные навесы для зимнего хранения, веревочный парк в овражной зоне, детские площадки, беседки, шатры, современную пляжную зону; запроектированы ресторанный и банный комплексы
Площадь комплекса составляет 18 Га, из которых ЭКО- поселение занимает около 12 Га, оставшаяся часть предназначена для лесных прогулок, спорта, отдыха, культурно-просветительских и оздоровительных мероприятий. Практически вся территория состоит из хвойного леса, где также встречаются величественные
столетние дубы, вязы и лиственницы

Этапы строительства

lightbox image
Не копируйте текст!
Иконка коллекции H
Коттедж Hilbert
Иконка коллекции I
Коттедж Hilbert
Иконка коллекции L
Коттедж Hilbert
Иконка коллекции B
Коттедж Hilbert
Иконка коллекции E
Коттедж Hilbert
Иконка коллекции R
Коттедж Hilbert
Иконка коллекции T
Коттедж Hilbert

H-250

45,8 млн. ₽
Коттедж H-250
Общая площадь
Общая площадь 380 м2
Жилая площадь
Жилая площадь 250 м2
Количество комнат
Количество комнат 5

H-140

24,3 млн. ₽
Коттедж H-140
Общая площадь
Общая площадь 237 м2
Жилая площадь
Жилая площадь 140 м2
Количество комнат
Количество комнат 4

H-160

31,6 млн. ₽
Коттедж H-160
Общая площадь
Общая площадь 345 м2
Жилая площадь
Жилая площадь 160 м2
Количество комнат
Количество комнат 4

H-200

34,2 млн. ₽
Коттедж H-200
Общая площадь
Общая площадь 295 м2
Жилая площадь
Жилая площадь 200 м2
Количество комнат
Количество комнат 4

H-300

56,4 млн. ₽
Коттедж H-300
Общая площадь
Общая площадь 468 м2
Жилая площадь
Жилая площадь 300 м2
Количество комнат
Количество комнат 5

I-250

52,8 млн. ₽
Коттедж I-250
Общая площадь
Общая площадь 340 м2
Жилая площадь
Жилая площадь 250 м2
Количество комнат
Количество комнат 5

I-200

42,2 млн. ₽
Коттедж I-200
Общая площадь
Общая площадь 335 м2
Жилая площадь
Жилая площадь 200 м2
Количество комнат
Количество комнат 4

I-300

63,3 млн. ₽
Коттедж I-300
Общая площадь
Общая площадь 655 м2
Жилая площадь
Жилая площадь 300 м2
Количество комнат
Количество комнат 5

I-140

29,5 млн. ₽
Коттедж I-140
Общая площадь
Общая площадь 230 м2
Жилая площадь
Жилая площадь 140 м2
Количество комнат
Количество комнат 4

I-160

33,8 млн. ₽
Коттедж I-160
Общая площадь
Общая площадь 460 м2
Жилая площадь
Жилая площадь 160 м2
Количество комнат
Количество комнат 4

L-350

68,7 млн. ₽
Коттедж L-300
Общая площадь
Общая площадь 480 м2
Жилая площадь
Жилая площадь 350 м2
Количество комнат
Количество комнат 6

L-250

52,8 млн. ₽
Коттедж L-250
Общая площадь
Общая площадь 325 м2
Жилая площадь
Жилая площадь 250 м2
Количество комнат
Количество комнат 5

L-200

34 млн. ₽
Коттедж L-200
Общая площадь
Общая площадь 265 м2
Жилая площадь
Жилая площадь 200 м2
Количество комнат
Количество комнат 4

L-300

63,3 млн. ₽
Общая площадь
Общая площадь 395 м2
Жилая площадь
Жилая площадь 300 м2
Количество комнат
Количество комнат 5

L-250

52,8 млн. ₽
Общая площадь
Общая площадь 325 м2
Жилая площадь
Жилая площадь 250 м2
Количество комнат
Количество комнат 5

B-245

51,4 млн. ₽
Коттедж B-245
Общая площадь
Площадь 285 м2
Жилая площадь
Жилая площадь 245 м2
Количество комнат
Количество комнат 5

B-160

67,4 млн. ₽
Коттедж B-160
Общая площадь
Общая площадь 245 м2
Жилая площадь
Жилая площадь 160 м2
Количество комнат
Количество комнат 4

B-300

67,4 млн. ₽
Коттедж B-300
Общая площадь
Общая площадь 460 м2
Жилая площадь
Жилая площадь 300 м2
Количество комнат
Количество комнат 6

B-185

39,1 млн. ₽
Коттедж B-185
Общая площадь
Общая площадь 266 м2
Жилая площадь
Жилая площадь 184 м2
Количество комнат
Количество комнат 4

B-195

42,5 млн. ₽
Коттедж B-195
Общая площадь
Общая площадь 312 м2
Жилая площадь
Жилая площадь 193 м2
Количество комнат
Количество комнат 4
 

E-250

42,5 млн. ₽
Коттедж E-250
Общая площадь
Общая площадь 435 м2
Жилая площадь
Жилая площадь 250 м2
Количество комнат
Количество комнат 5

E-200

34 млн. ₽
Коттедж E-200
Общая площадь
Общая площадь 390 м2
Жилая площадь
Жилая площадь 200 м2
Количество комнат
Количество комнат 4

E-300

54 млн. ₽
Коттедж E-300
Общая площадь
Общая площадь 480 м2
Жилая площадь
Жилая площадь 300 м2
Количество комнат
Количество комнат 6

E-140

23,8 млн. ₽
Коттедж E-140
Общая площадь
Общая площадь 260 м2
Жилая площадь
Жилая площадь 140 м2
Количество комнат
Количество комнат 4

E-160

27,2 млн. ₽
Коттедж E-160
Общая площадь
Общая площадь 270 м2
Жилая площадь
Жилая площадь 160 м2
Количество комнат
Количество комнат 4
 

R-250

xx млн. ₽
Коттедж R-250
Общая площадь
Общая площадь 435 м2
Жилая площадь
Жилая площадь 250 м2
Количество комнат
Количество комнат 5

R-200

       
42,5 млн. ₽
Коттедж R-200
Общая площадь
Общая площадь 390 м2
Жилая площадь
Жилая площадь 200 м2
Количество комнат
Количество комнат 4

R-300

xx млн. ₽
Коттедж R-300
Общая площадь
Общая площадь 480 м2
Жилая площадь
Жилая площадь 300 м2
Количество комнат
Количество комнат 6

R-140

xx млн. ₽
Коттедж R-140
Общая площадь
Общая площадь 260 м2
Жилая площадь
Жилая площадь 140 м2
Количество комнат
Количество комнат 4

R-160

xx млн. ₽
Коттедж R-160
Общая площадь
Общая площадь 270 м2
Жилая площадь
Жилая площадь 160 м2
Количество комнат
Количество комнат 4
 

T-300

67,3 млн. ₽
Коттедж T-300
Общая площадь
Общая площадь 495 м2
Жилая площадь
Жилая площадь 300 м2
Количество комнат
Количество комнат 6

T-160

27,2 млн. ₽
Коттедж T-160
Общая площадь
Общая площадь 425 м2
Жилая площадь
Жилая площадь 160 м2
Количество комнат
Количество комнат 4

T-250

57,3 млн. ₽
Коттедж T-250
Общая площадь
Общая площадь 343 м2
Жилая площадь
Жилая площадь 250 м2
Количество комнат
Количество комнат 5

T-200

34 млн. ₽
Коттедж T-200
Общая площадь
Общая площадь 270 м2
Жилая площадь
Жилая площадь 200 м2
Количество комнат
Количество комнат 4

T-140

23,8 млн. ₽
Коттедж T-140
Общая площадь
Общая площадь 260 м2
Жилая площадь
Жилая площадь 140 м2
Количество комнат
Количество комнат 4